Consiglia questa pagina su:

Recupero abitativo sottetti

Recupero sottotetto: norme sull’abitabilità ed esempi progettuali

 

Cosa valutare in un progetto di recupero di un sottotetto? Norme, fattibilità, requisiti di abi-tabilità, soluzioni architettoniche.

Il recupero di un sottotetto è un intervento finalizzato al riuso di ambienti non agibili e alla loro conversione in spazi ad uso abitativo.
Prima di iniziare un progetto di recupero di un sottotetto è necessario verificare la fattibilità dell’intervento e valutare l’effettiva possibilità di ottenere l’agibilità in base ai requisiti pre-visti dalla normativa vigente in materia. A tal proposito, quasi tutte le regioni hanno emana-to normative che disciplinano e favoriscono il recupero dei sottotetti, con lo scopo di limitare l’eccessiva espansione delle città e ovviare alla mancanza di nuovi spazi edificabili nei cen-tri abitati.
In questo focus analizzeremo la normativa vigente in materia (proponendo come utile rife-rimento il dossier curato dall’ANCE) e daremo dei consigli pratici per affrontare il progetto di recupero di un sottotetto, proponendo anche un esempio utile per approfondire gli aspetti normativi, progettuali e tipologici.

 

Agg. 25 febbraio 2025


In quali regioni è applicata semplificazione per il recupero sotto-tetti prevista dal Salva Casa?


La pubblicazione delle Linee di indirizzo e criteri interpretativi MIT sul Salva Casa (PDF) chiarisce in quali regioni è stata recepita ed è valida la semplificazione del recupero sottotetti di cui all’art. 2-bis del D.P.R. 380/01.
L’articolo 2-bis, comma 1-quater, del Testo Unico introduce disposizioni per semplificare il re-cupero dei sottotetti, con l’obiettivo di favorire l’ampliamento dell’offerta abitativa senza aumentare il consumo di nuovo suolo. Secondo la norma, gli interventi di recupero dei sotto-tetti sono permessi, anche se non rispettano le distanze minime tra edifici e dai confini, pur-ché vengano rispettati alcuni requisiti:
• le distanze stabilite al momento della costruzione dell’edificio;
• la forma e la superficie del sottotetto devono rimanere invariati;
• l’altezza dell’edificio non può superare quella autorizzata dal titolo edilizio.
Inoltre, rimangono in vigore le disposizioni più favorevoli stabilite dalle leggi regionali.
Riguardo a questo ultimo aspetto il MIT chiarisce che il recupero dei sottotetti è quindi am-messo solo in presenza di una norma regionale che stabilisca le condizioni necessarie per permettere tale recupero (ad esempio, in relazione alla definizione di sottotetto, alle condi-zioni per la realizzazione degli interventi e alla regolamentazione del rapporto aeroillumi-nante).
La data di emanazione delle leggi regionali (se antecedente o successiva alla legge di con-versione del D.L. Salva Casa) non è rilevante. L’importante è che esista una normativa regio-nale che disciplini le modalità di recupero dei sottotetti.
Se una legge regionale sul recupero dei sottotetti fosse parzialmente dichiarata incostituzio-nale dalla Corte costituzionale, ciò non significa che la legge regionale non sia più valida. L’importante è che la normativa regionale sia comunque in grado di individuare i presuppo-sti essenziali per il recupero dei sottotetti.
Al contrario, per le Regioni che non hanno adottato una disciplina specifica, la norma in que-stione mira a favorire l’introduzione di una normativa sulla questione, sempre con l’intento di stimolare l’espansione dell’offerta abitativa.


In quali regioni opera la semplificazione in materia di sottotetti introdotta dal D.L. Salva Casa?


Si riportano di seguito le leggi regionali sul recupero dei sottotetti secondo quanto previsto dal dossier ANCE sui sottotetti:


Abruzzo Art. 1 L.R. 10/2011
Basilicata L.R. 8/2002
Calabria Art. 7 – L.R. 25/2022
Art. 49 – L.R. 19/2002
Campania L.R. 15/2000
Emilia Romagna L.R. 11/1998
Friuli Venezia Giulia Art. 39 – L.R. 19/2009
Lazio L.R. 13/2009
Liguria L.R. 24/2001
Lombardia Artt. 63-64 – L.R. 12/2005
Marche Art. 13 – L.R. 17/2015
Molise L.R. n. 25/2008
Piemonte L.R. 16/2018
Puglia L.R. 33/2007
Sardegna Art. 123 L.R. 9/2023
Sicilia Art. 5 – L.R. 16/2016
Toscana L.R. 5/2010
Umbria Art. 156-157 – L.R. 1/2015
Veneto L.R. 51/2019


Recupero sottotetti: le norme regionali


Come già accennato in premessa, prima di presentare un progetto di recupero di un sotto-tetto, è necessario verificare la fattibilità dell’intervento ai sensi della specifica legge re-gionale. Potrebbe, infatti, capitare di imbattersi in ambienti troppo bassi o troppo piccoli per essere realmente abitati o goduti al meglio, come i locali tecnici in cui la copertura tende a coincidere con il solaio.
Per verificare l’effettiva fattibilità del progetto, oltre al Testo Unico Edilizia (D.P.R. 380/2001) e alle Norme Tecniche Costruzioni (NTC 2018), occorre far riferimento a:
• norme nazionali (D.M. 5 luglio 1975),
• leggi regionali,
• disposizioni urbanistiche locali (puc, piani particolareggiati, ecc.),
• norme igienico-sanitarie.
In generale, i parametri da tener presente per la valutazione sono:
• l’anno di edificazione del fabbricato,
• la conformità del fabbricato esistente rispetto ai titoli abilitativi ottenuti,
• le altezze minime degli ambienti abitabili,
• il rapporto aero-illuminante,
• l’altezza media ponderale,
• possibilità di modifica della sagoma del tetto.
Da segnalare che gli interventi di recupero dei sottotetti sono classificati co-me ristrutturazioni edilizie e possono richiedere permessi di costruire o Segnalazioni Certifi-cate di Inizio Attività (SCIA), a seconda della regione.


Il dossier ANCE


A questo proposito segnaliamo il dossier normativo “Sottotetti: le discipline sul territorio” pubblicato dall’ANCE (Associazione Nazionale Costruttori Edili).
La pubblicazione – aggiornata a giugno 2024 –  è strutturata in schede, ognuna delle quali fornisce informazioni dettagliate sulle normative locali, comprese le definizioni di sottotetto, le condizioni per eseguire interventi, le deroghe, le altezze minime da rispettare, i requisiti aeroilluminanti, le tipologie di interventi ammessi e i titoli abilitativi necessari. 

 

Soluzioni utili per la redazione di un progetto di recupero di un sottotetto


Appurata la fattibilità dell’operazione di recupero, ci si trova di fronte ad un’interessante sfi-da progettuale.
Organizzare gli spazi di un sottotetto, infatti, richiede accorgimenti e soluzioni architettoniche ingegnose che rendano gli spazi vivibili e piacevoli. Sicuramente, a prescindere dalle pecu-liarità di ogni singolo caso, si presenta la necessità di:
• aprire nuove finestre e abbaini per rispettare i valori aero-illuminanti previsti
• realizzare terrazzi per rendere vivibili anche gli spazi non altrimenti utilizzabili
• realizzare arredi fissi o ripostigli per sfruttare anche gli spazi più angusti
• creare zone a doppia altezza se la mansarda è connessa all’abitazione sotto-stante
• verificare il valore della trasmittanza della copertura

 

 

Finestre e abbaini


La realizzazione di nuove aperture è indispensabile sia ai fini dell’ottenimento dell’agibilità che per l’effettiva vivibilità e salubrità degli ambienti di una mansarda.
Le aperture vetrate possono essere sostanzialmente di tre tipi:
• finestre/balconi
• abbaini
• lucernari
Quando non è possibile realizzare aperture sugli involucri verticali del fabbricato, si rende necessario ricorrere a soluzioni alternative come gli abbaini e i lucernari che favoriscono l’ingresso di luce e aria dalla superficie inclinata della falda di copertura. La possibilità e la modalità di realizzazione degli abbaini è regolamentata dai piani urbanistici comunali che ne definiscono l’altezza massima, la superficie, la tipologia, etc.
L’impiego di abbaini consente di incrementare l’illuminazione degli ambienti interni, ma an-che di modificare puntualmente l’andamento della copertura, aumentando l’altezza inter-na e regalando allo spazio maggiore vivibilità e ariosità.


Terrazzi


Solitamente, essendo posizionata all’ultimo piano dell’edificio, la mansarda gode di una po-sizione ottimale, privilegiata per il panorama e le viste prospettiche verso l’intorno.
Quando è possibile, quindi, si consiglia di ricavare, all’interno della sagoma del tetto, dei ter-razzini o dei camminamenti rimuovendo le porzioni di copertura degli spazi con altezza infe-riore al minimo consentito.
Questa soluzione progettuale, dunque, permette di aumentare l’altezza media interna, di sfruttare uno spazio che altrimenti sarebbe impraticabile e inagibile e di godere di uno spa-zio aperto pertinenziale all’abitazione, incrementando anche il valore complessivo dell’immobile.

 

Arredi fissi e ripostigli


Per sfruttare gli spazi non abitabili di una mansarda, soprattutto nei casi in cui la legge re-gionale obbliga alla tamponatura in corrispondenza dell’ altezza minima consentita (gene-ralmente 1,50 m/1,40 m), è consigliabile l’impiego di armadi a muro, arredi fissi oppure la creazione di depositi e ripostigli per sfruttare spazi altrimenti inutilizzabili. Questa scelta con-sente di recuperare spazi utili sfruttando superfici talvolta ampie che altrimenti andrebbero perse.


Doppia altezza


Qualora il sottotetto da recuperare sia pertinenziale all’abitazione sottostante, una delle possibilità è quella di creare un interessante gioco di doppia altezza e mettere in comunica-zione visiva i due piani, operando dei tagli nel solaio, preferibilmente nelle zone con altezza minore.
Disporre di spazi a doppia altezza, oltre che contribuire alla creazione di ambienti più inte-ressanti e articolati, consente di migliorare la percezione dello spazio che sembrerà certa-mente più grande e arioso di quello che è realmente. Uno spazio a doppia altezza, se ben progettato, può migliorare la luminosità degli ambienti sottostanti e incrementarne anche il ricambio d’aria, favorendo il ricircolo dell’aria, la ventilazione trasversale naturale e l’effetto camino.

Coibentazione


Nel progetto di recupero di un sottotetto è necessario valutare e, nel caso, studiare sempre una soluzione ottimale per la coibentazione della copertura attraverso la quale avviene gran parte delle dispersioni di calore. Per la coibentazione del tetto e del sottotetto è possi-bile scegliere tra differenti materiali: tra i più utilizzati ricordiamo il poliuretano espanso, la fi-bra di legno, il sughero, la lana di roccia, la lana di vetro e la fibra di cellulosa

 

Recupero sottotetti: modifiche nel decreto salva-casa


La Legge 105/2024 di conversione del D.L. 69/2024 modifica l’art. 2-bis del D.P.R. 380/01 sancendo nuove disposizioni relative agli interventi di recupero dei sottotetti al fine di incentivare l’ampliamento dell’offerta abitativa limitando il consumo di nuovo suolo.
A seguito di tale legge, il recupero dei sottotetti è sempre consentito, nei limiti e secondo le procedure stabilite dalla legge regionale, anche quando l’intervento non rispetta le distanze minime tra edifici e dai confini, a patto che:
• siano rispettati i limiti di distanza in vigore al momento della costruzione dell’edificio;
• l’intervento non modifichi la forma e la superficie del sottotetto, come delimi-tata dalle pareti perimetrali;
• sia rispettata l’altezza massima dell’edificio autorizzata dal titolo edilizio origi-nario.
In ogni caso, sono salvaguardate le leggi regionali più favorevoli.

 

Cosa si intende per progetto di recupero di un sottotetto


Per recupero di un sottotetto si intende l’ adeguamento urbanistico dell’ultimo piano di un fabbricato, solitamente mansardato, e la sua conversione ad uso abitativo. Per attuare il riuso di uno spazio non agibile, occorre verificare che siano rispettati tutti i criteri di abitabili-tà previsti dalla normativa regionale e dai piani urbanistici locali, oppure che siano con-sentiti interventi edili volti a rendere lo spazio abitabile.

 

La trasformazione di un volume tecnico non utilizzato (sottotetto) in un’abitazione indipendente, oppure in spazi di pertinenza agli ambienti sottostanti, consente un vantaggioso guadagno di spazio con costi di ristrutturazione relativamente contenuti, sfruttando al meglio suolo già urbanizzato e, dunque, già dotato di opere di urbanizzazione primaria (rete elettrica, rete idrica, rete fognaria, etc.).

Tutte le regioni italiane sono attualmente provviste di normative per il recupero dei sottotetti, incluse le provincie autonome di Trento e di Bolzano.  Le norme differiscono da regione a regione in funzione dei valori assegnati ai parametri urbanistici previsti.

 

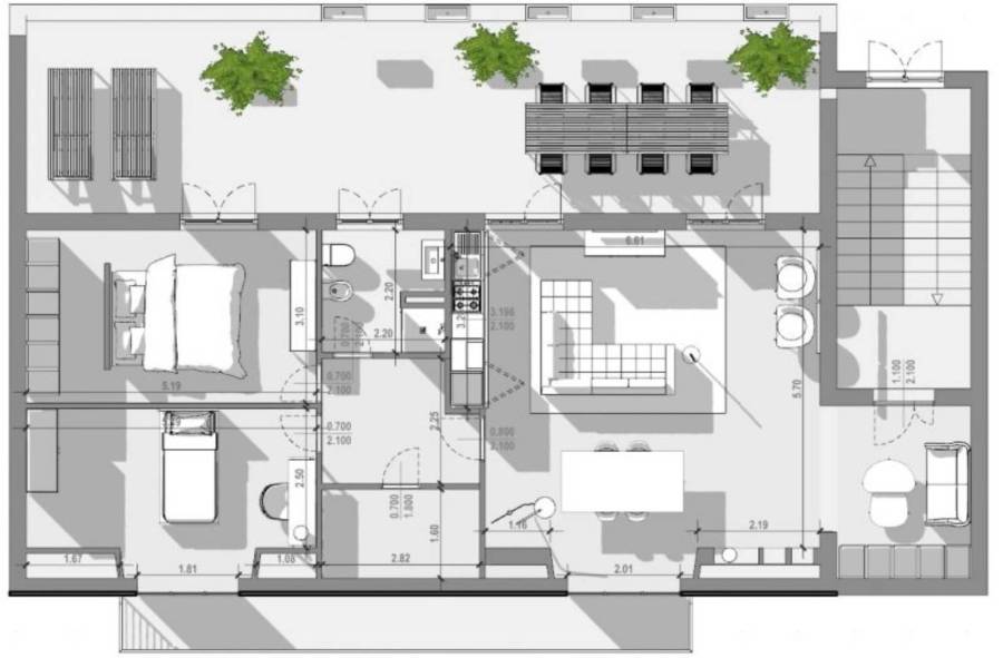
Progetto di recupero di un sottotetto: un caso pratico


Nel caso in esame, partiamo da un sottotetto non abitabile, con superficie complessiva di circa 100 m², altezza minima di 1,30 m e altezza massima, misurata all’intradosso del colmo, di 3,30 m. L’ambiente, coperto da un tetto a due falde, non presenta alcuna apertura verso l’esterno e risulta accessibile mediante una scala interna in cemento armato. L’intervento non prevede la modifica dell’altezza di colmo e di gronda del fabbricato, nè della pendenza della falde.

 

 

Per effettuare il cambio di destinazione d’uso, da stenditoio ad abitazione, è stato necessario adeguare lo spazio esistente, mediante tre operazioni fondamentali:

apertura di nuove finestre
realizzazione terrazzo
realizzazione abbaini.
Per prima cosa, è stato modificato il volume esistente lavorando per sottrazione. Si è ipotizzata la demolizione di una parte di copertura, quella in corrispondenza delle altezze minori, e il conseguente arretramento del filo della tamponatura esterna per lasciare spazio al terrazzo.

In questo modo, il nuovo fronte del fabbricato prospiciente il terrazzo avrà un’altezza minima maggiore rispetto a quella dello stato di fatto, favorendo così la verifica dell’altezza media ponderale richiesta dalla normativa e l’apertura di nuove finestre.

Sull’altro prospetto, invece, è stata ipotizzata la realizzazione di due grandi abbaini, che consentono l’affaccio verso l’esterno e contribuiscono a restituire spaziosità agli ambienti interni, modificando l’altezza interna. La forma degli abbaini, infatti, è stata studiata in modo da ottimizzare al massimo l’utilizzo dello spazio interno, portando l’altezza massima dell’abbaino a quella del colmo.

 

 

Riformulata la conformazione spaziale complessiva si è proceduto alla ridistribuzione delle funzioni. La scelta distributiva è stata dettata da esigenze personali della committenza e da necessità puramente architettoniche e funzionali.  Allo stato di fatto non erano presenti tra-mezzi interni, né impianti. Per recuperare superficie abitabile, è stata ripensata la posizione della porta d’ingresso, sfruttando anche una porzione del vano scala, inglobandola nel nuo-vo appartamento.


E’ stato ricavato, in tal modo, un ingresso disimpegnato dalla zona giorno e attrezzato con guardaroba e armadiature. L’ingresso immette direttamente nella zona giorno completa-mente open space, che comprende l’area relax con divani e televisione, la zona pranzo e la cucina. Al fine di rendere la cucina meno impattante, è stato progettato un sistema di porte con apertura a pacchetto che, richiudendosi, nascondono alla vista l’angolo cottura.  Questo escamotage architettonico permette di vivere il living anche in occasioni più formali.


Dalla zona giorno, un piccolo disimpegno conduce all’area più privata della casa compren-dente due camere da letto, un bagno e un deposito.


La completa rivisitazione spaziale, in questo caso, ha consentito di trasformare uno spazio non vivibile in una vera e propria abitazione per una famiglia media di 3/4 persone.

 

 

Regione Campania, nella Finanziaria 2013 novità per il recupero dei sottotetti.

 

Riportiamo Notizia da Italia News.it

 

“ NOVITA’ per il recupero dei SOTTOTETTI in ABITAZIONI”.

 

 

 

      Con il via libera alla manovra Finanziaria 2013 il Consiglio regionale della Campania modifica la normativa sul recupero a fini abitativi dei sottotetti.

 

Ad annunciarne le interessanti ricadute per il territorio è il consigliere regionale Giovanni Baldi.

 

“Abbiamo approvato nella nuova Finanziaria un’importante modifica all’art. 3 della legge regionale n° 15 del 2000. Il recupero abitativo dei sottotetti sarà permesso in caso di altezza media interna di due metri e venti centimetri e con una altezza minima della parete di un metro e quaranta.

 

  
    Precedentemente l’altezza media richiesta era di due metri e quaranta centimetri.

 

    Questa modifica permetterà sicuramente di incrementare le superfici recuperabili ad esigenze abitative”.
Queste le modifiche integrali introdotte dalla Finanziaria alla legge 15/2000:
“144) Il recupero abitativo dei sottotetti realizzati alla data di entrata in vigore della presente

 

legge è ammesso alle condizioni di cui all’articolo 3 della legge regionale 28 novembre 2000, n. 15.
145) Al comma 1 dell’articolo 3 della legge regionale n. 15 del 2000, la lettera c) è sostituita dalla seguente:
“c) l’altezza media interna, calcolata dividendo il volume interno lordo per la superficie interna lorda, non può essere inferiore a metri 2,20.

 

      In caso di soffitto non orizzontale, fermo restando le predette altezze medie, l’altezza della parete minima non può essere inferiore a metri 1,40.

 

Gli eventuali spazi di altezza inferiore al minimo, da non computarsi ai fini del calcolo dell’altezza media interna, sono chiusi mediante opere murarie o arredi fissi e ne può essere consentito l’uso come spazio di servizio destinato a guardaroba ed a ripostiglio.

 

      In corrispondenza delle fonti di luce diretta la chiusura di tali spazi non è prescrittiva.

 

     Per i locali con i soffitti a volta l’altezza media è calcolata  come media aritmetica tra l’altezza dell’imposta e quella del colmo della volta stessa, misurata dal pavimento al loro intradosso con una tolleranza fino al 5 per cento.”.

 

   Lo studio tecnico e’ a disposizione per quei committenti che vogliono intraprendere una pratica inerente la trasformazione di un sottotetto esistente, in un appartamento per civile abitazione.